Construction Maison + Terrain – Celle Lévescault
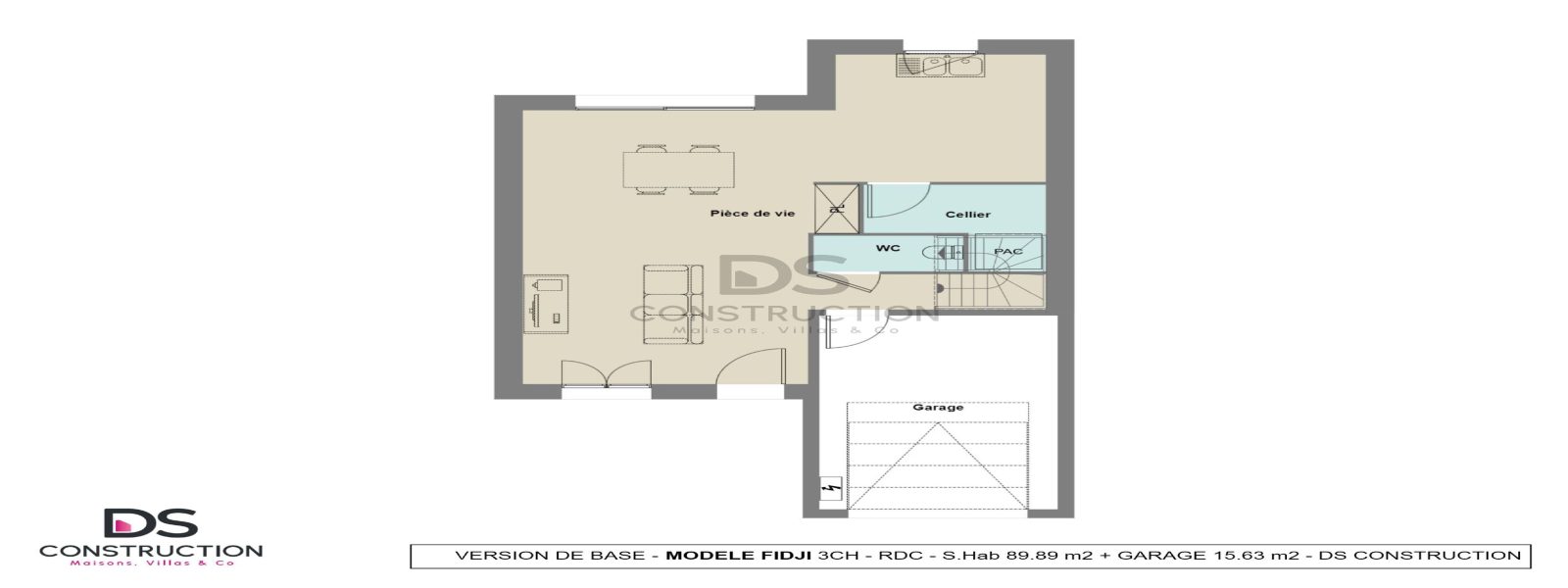
Découvrez le modèle Fidji, une maison à étage de 89 m² qui s’adapte aussi bien aux terrains étroits qu’aux parcelles plus larges, tout en maximisant l’espace et le confort.
Le modèle Fidji comprend trois chambres situées à l'étage, offrant une intimité parfaite pour le repos et la détente. La salle de bains moderne complète l'espace nuit, tandis que le rez-de-chaussée est dédié à la vie quotidienne.
La cuisine ouverte sur le séjour crée un espace convivial et fluide, parfait pour les moments en famille. Un cellier attenant ajoute un espace de rangement pratique pour une organisation optimale de votre intérieur.
Le garage de 15 m² est bien intégré avec un décroché qui apporte du caractère à la façade et améliore l’aspect visuel général de la maison. Le modèle Fidji allie confort, praticité et style, avec une séparation efficace entre les espaces de vie et les chambres.
Personnalisez et configurez cette maison, selon vos envies et besoins. N’hésitez pas à faire une demande de renseignements pour votre projet de vie.
Prix total se décomposant entre prix terrain et prix de construction, communiqué a titre indicatif et susceptible de modifications. Prix comprenant une maison aux normes RE2020 (classe énergétiques A), Construction sur vide sanitaire, Menuiserie blanches, Pompes à chaleur réversibles et chauffe-eau thermodynamique.
Le prix ne comprend pas, Adaptations au sol, Peintures, Décorations, Aménagements intérieures, Revêtements de sols des chambres, Cuisines, Aménagements extérieures, Frais de dossier et assurances en cas de recours à un prêt, Taxe d’aménagement et participations d’urbanisme, Frais d’abonnement aux réseaux et Taxes afférentes, Frais notariés, Etudes de sol, Raccordements et VRD.
La société DS Construction s’efforce d’assurer une mise à jour régulière de ses annonces. Elle ne peut cependant être tenue pour responsable d’un éventuel défaut de mise à jour de ces annonces. Visuels non contractuels.
Simulation gratuite
Fusce quis consequat purus. Nam vitae elit id diam sollicitudin condimentum. Quisque euismod augue a orci commodo, sed hendrerit lectus commodo.
Quisque ut elit eget tellus faucibus laoreet eget eu leo. Nunc eget dolor sit amet tellus pretium aliquam vulputate sit amet risus. Cras vitae purus leo. Quisque ultrices mi in finibus bibendum. Donec felis lorem, scelerisque sit amet consectetur sed, molestie ut turpis.