Construction Maison + Terrain – Chalandray
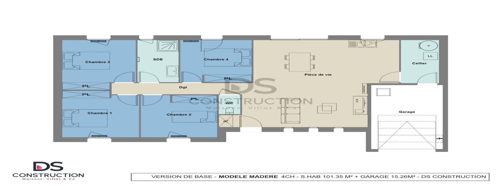
Découvrez le modèle Madère de 101 m² qui est une maison spacieuse avec quatre chambres, parfaitement conçue pour une vie familiale confortable. La maison offre une salle de bains fonctionnelle et des espaces bien agencés pour répondre à vos besoins quotidiens.
Le séjour est lumineux grâce à une grande baie vitrée et trois châssis fixes de 40 cm sur la façade avant, permettant à la lumière du jour de traverser et d’éclairer l'espace de vie de manière agréable.
La cuisine ouverte sur le séjour est idéale pour les moments conviviaux, accompagnée d'un cellier pratique pour optimiser le rangement. Un garage de 15 m², avec un décroché élégant, complète ce modèle, ajoutant à la fois fonctionnalité et style.
Les décrochements au niveau des chambres et du garage apportent un design distinctif au modèle Madère, offrant un aspect visuel intéressant tout en améliorant l'agencement et la praticité de la maison.
Personnalisez et configurez cette maison, selon vos envies et besoins. N’hésitez pas à faire une demande de renseignements pour votre projet de vie.
Prix total se décomposant entre prix terrain et prix de construction, communiqué a titre indicatif et susceptible de modifications. Prix comprenant une maison aux normes RE2020 (classe énergétiques A), Construction sur vide sanitaire, Menuiserie blanches, Pompes à chaleur réversibles et chauffe-eau thermodynamique.
Le prix ne comprend pas, Adaptations au sol, Peintures, Décorations, Aménagements intérieures, Revêtements de sols des chambres, Cuisines, Aménagements extérieures, Frais de dossier et assurances en cas de recours à un prêt, Taxe d’aménagement et participations d’urbanisme, Frais d’abonnement aux réseaux et Taxes afférentes, Frais notariés, Etudes de sol, Raccordements et VRD.
La société DS Construction s’efforce d’assurer une mise à jour régulière de ses annonces. Elle ne peut cependant être tenue pour responsable d’un éventuel défaut de mise à jour de ces annonces. Visuels non contractuels.
Simulation gratuite
Fusce quis consequat purus. Nam vitae elit id diam sollicitudin condimentum. Quisque euismod augue a orci commodo, sed hendrerit lectus commodo.
Quisque ut elit eget tellus faucibus laoreet eget eu leo. Nunc eget dolor sit amet tellus pretium aliquam vulputate sit amet risus. Cras vitae purus leo. Quisque ultrices mi in finibus bibendum. Donec felis lorem, scelerisque sit amet consectetur sed, molestie ut turpis.
Agence de Poitiers
Vous aimerez aussi