• b34219b1a238d95e1a1e1b0de3825ffd.jpg
  • 34d8646ce637f38420e2e641b752160d.jpg
  • 8148f664e108b09fd3d2cdaf48c779fa.jpg
3
89 m² Terrain de 684 m² 5 pièces 3 chambres 1 sdb / sde

Construction Maison + Terrain – Châtellerault

173 780 €
Référence : Châtellerault 5

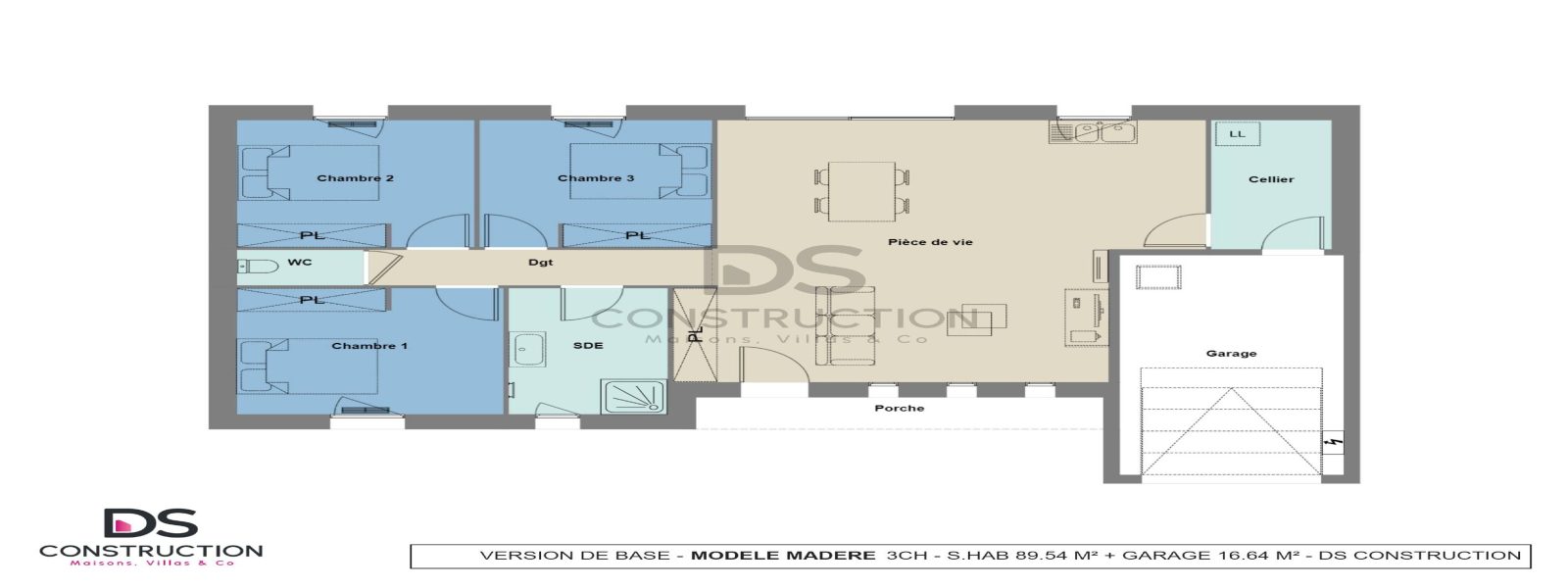
Découvrez le modèle Madère de 89 m² qui est conçu pour offrir confort et fonctionnalité avec ses trois chambres et une salle de bains bien aménagée. La disposition de cette maison optimise l'espace de vie tout en apportant une touche esthétique unique.

Le séjour bénéficie d'une lumière abondante grâce à une grande baie vitrée et trois châssis fixes de 40 cm sur la façade avant, assurant une luminosité traversante tout au long de la journée.
La cuisine ouverte sur le séjour est idéale pour les repas conviviaux, avec un cellier pratique pour le rangement. Le garage de 16 m² est bien intégré, avec un décroché qui ajoute une dimension intéressante au design.
Le modèle Madère se distingue par des décrochés au niveau des chambres et du garage, offrant un design distinctif tout en augmentant la fonctionnalité et l’esthétique de la maison.

Personnalisez et configurez cette maison, selon vos envies et besoins. N’hésitez pas à faire une demande de renseignements pour votre projet de vie.
Prix total se décomposant entre prix terrain et prix de construction, communiqué a titre indicatif et susceptible de modifications. Prix comprenant une maison aux normes RE2020 (classe énergétiques A), Construction sur vide sanitaire, Menuiserie blanches, Pompes à chaleur réversibles et chauffe-eau thermodynamique.

Le prix ne comprend pas, Adaptations au sol, Peintures, Décorations, Aménagements intérieures, Revêtements de sols des chambres, Cuisines, Aménagements extérieures, Frais de dossier et assurances en cas de recours à un prêt, Taxe d’aménagement et participations d’urbanisme, Frais d’abonnement aux réseaux et Taxes afférentes, Frais notariés, Etudes de sol, Raccordements et VRD.
La société DS Construction s’efforce d’assurer une mise à jour régulière de ses annonces. Elle ne peut cependant être tenue pour responsable d’un éventuel défaut de mise à jour de ces annonces. Visuels non contractuels.

Simulation gratuite

Fusce quis consequat purus. Nam vitae elit id diam sollicitudin condimentum. Quisque euismod augue a orci commodo, sed hendrerit lectus commodo.

Quisque ut elit eget tellus faucibus laoreet eget eu leo. Nunc eget dolor sit amet tellus pretium aliquam vulputate sit amet risus. Cras vitae purus leo. Quisque ultrices mi in finibus bibendum. Donec felis lorem, scelerisque sit amet consectetur sed, molestie ut turpis.

Maison à construire 86100 Châtellerault

Agence de Poitiers

05.86.16.05.86 1 rue du Hameau de Chaumont - 86000 Poitiers

Vous aimerez aussi