Construction Maison + Terrain – Mirebeau
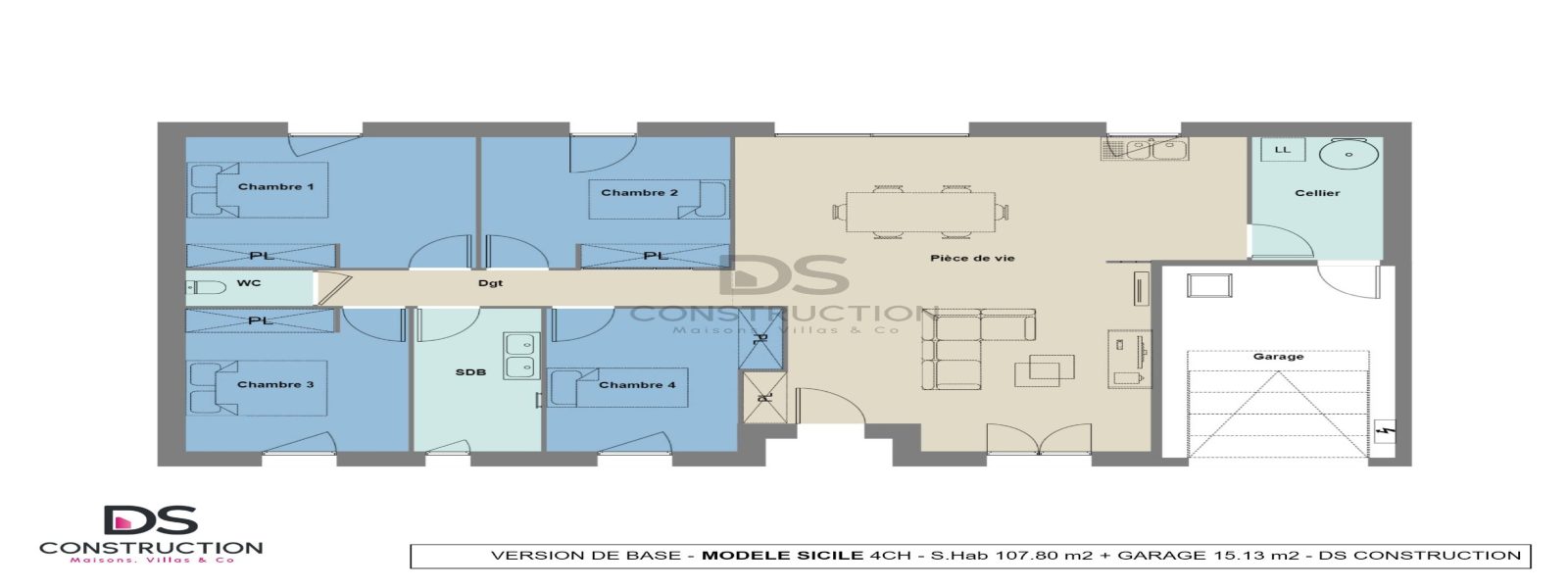
Découvrez le modèle Sicile, une maison moderne et spacieuse de 107 m² au design rectangulaire, qui se distingue par un élégant renfoncement d’environ 1 mètre sur 2 mètres à l'entrée.
À l'intérieur, le modèle Sicile vous propose trois chambres confortables. La pièce de vie traversante est inondée de lumière naturelle grâce à une baie vitrée d'un côté et une porte-fenêtre de l'autre.
La cuisine ouverte, intégrée au séjour, favorise une ambiance conviviale et fluide, idéale pour les repas en famille ou les soirées entre amis. Un cellier adjacent ajoute un espace de rangement pratique.
Le modèle Sicile comprend également un garage de 15 m², offrant un espace sécurisé pour votre véhicule ou pour du rangement supplémentaire. Le renfoncement à l'entrée, avec ses dimensions soigneusement conçues, ajoute une touche de sophistication au design de la maison.
Personnalisez et configurez cette maison, selon vos envies et besoins. N’hésitez pas à faire une demande de renseignements pour votre projet de vie.
Prix total se décomposant entre prix terrain et prix de construction, communiqué a titre indicatif et susceptible de modifications. Prix comprenant une maison aux normes RE2020 (classe énergétiques A), Construction sur vide sanitaire, Menuiserie blanches, Pompes à chaleur réversibles et chauffe-eau thermodynamique.
Le prix ne comprend pas, Adaptations au sol, Peintures, Décorations, Aménagements intérieures, Revêtements de sols des chambres, Cuisines, Aménagements extérieures, Frais de dossier et assurances en cas de recours à un prêt, Taxe d’aménagement et participations d’urbanisme, Frais d’abonnement aux réseaux et Taxes afférentes, Frais notariés, Etudes de sol, Raccordements et VRD.
La société DS Construction s’efforce d’assurer une mise à jour régulière de ses annonces. Elle ne peut cependant être tenue pour responsable d’un éventuel défaut de mise à jour de ces annonces. Visuels non contractuels.
Simulation gratuite
Fusce quis consequat purus. Nam vitae elit id diam sollicitudin condimentum. Quisque euismod augue a orci commodo, sed hendrerit lectus commodo.
Quisque ut elit eget tellus faucibus laoreet eget eu leo. Nunc eget dolor sit amet tellus pretium aliquam vulputate sit amet risus. Cras vitae purus leo. Quisque ultrices mi in finibus bibendum. Donec felis lorem, scelerisque sit amet consectetur sed, molestie ut turpis.
Agence de Poitiers
Vous aimerez aussi