Construction Maison + Terrain – Nieuil l’espoir
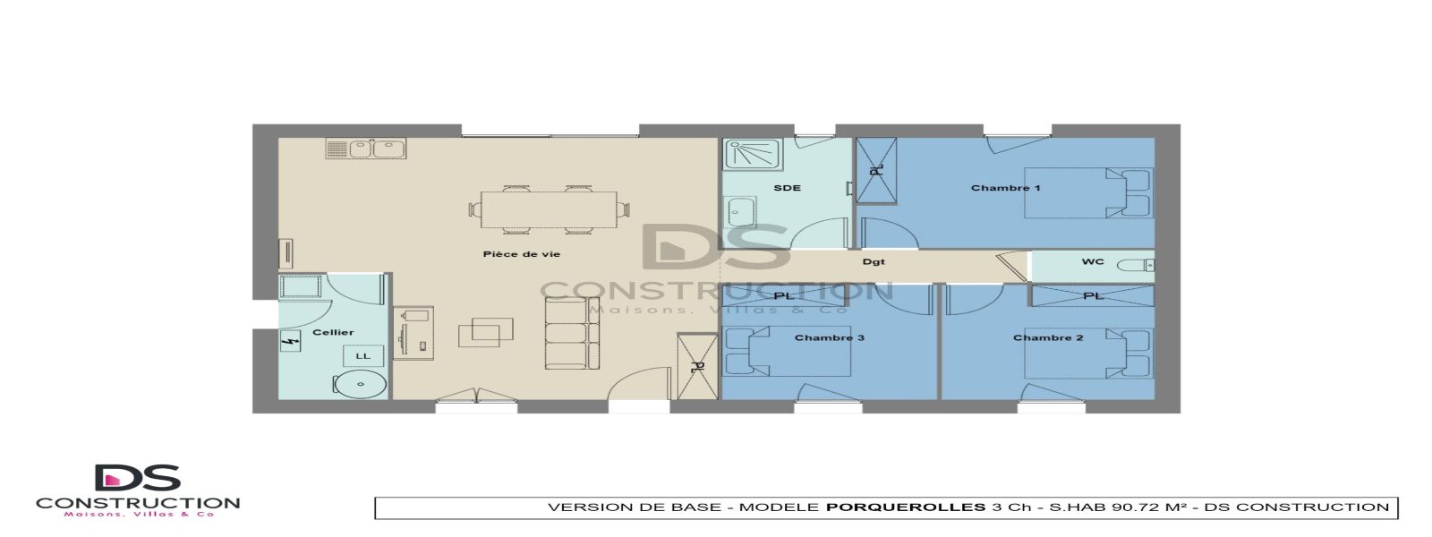
Découvrez le modèle Porquerolles, une maison élégante et bien pensée, offrant une surface de 90 m² parfaitement optimisée pour répondre aux besoins d'une famille. De forme rectangulaire, cette maison allie simplicité et fonctionnalité tout en maximisant chaque mètre carré.
Avec trois chambres confortables, vous disposerez de l’espace nécessaire pour chacun des membres de la famille ou pour aménager un bureau à domicile. Le cœur de la maison se compose d’un séjour lumineux, prolongé par une cuisine ouverte, parfaite pour partager des moments conviviaux en toute simplicité. Un cellier attenant à la cuisine vient compléter cet espace, offrant un rangement supplémentaire indispensable pour une organisation optimale.
Sans garage, le modèle Porquerolles privilégie une conception moderne et pratique, idéale pour ceux qui souhaitent profiter pleinement de leur espace de vie.
Personnalisez et configurez cette maison, selon vos envies et besoins. N’hésitez pas à faire une demande de renseignements pour votre projet de vie.
Prix total se décomposant entre prix terrain et prix de construction, communiqué a titre indicatif et susceptible de modifications. Prix comprenant une maison aux normes RE2020 (classe énergétiques A), Construction sur vide sanitaire, Menuiserie blanches, Pompes à chaleur réversibles et chauffe-eau thermodynamique.
Le prix ne comprend pas, Adaptations au sol, Peintures, Décorations, Aménagements intérieures, Revêtements de sols des chambres, Cuisines, Aménagements extérieures, Frais de dossier et assurances en cas de recours à un prêt, Taxe d’aménagement et participations d’urbanisme, Frais d’abonnement aux réseaux et Taxes afférentes, Frais notariés, Etudes de sol, Raccordements et VRD.
La société DS Construction s’efforce d’assurer une mise à jour régulière de ses annonces. Elle ne peut cependant être tenue pour responsable d’un éventuel défaut de mise à jour de ces annonces. Visuels non contractuels.
Simulation gratuite
Fusce quis consequat purus. Nam vitae elit id diam sollicitudin condimentum. Quisque euismod augue a orci commodo, sed hendrerit lectus commodo.
Quisque ut elit eget tellus faucibus laoreet eget eu leo. Nunc eget dolor sit amet tellus pretium aliquam vulputate sit amet risus. Cras vitae purus leo. Quisque ultrices mi in finibus bibendum. Donec felis lorem, scelerisque sit amet consectetur sed, molestie ut turpis.