• 62246ed0ac0c5f23f54e23d103a475c0.jpg
  • bec919bfd88fb94c51fe9e41fe9b8ea1.jpg
  • 65c020eb32886006f72ca2606d0a7a79.jpg
4
76 m² Terrain de 970 m² 4 pièces 2 chambres 1 sdb / sde

Construction Maison + Terrain – Roiffé

146 950 €
Référence : Roiffé 1

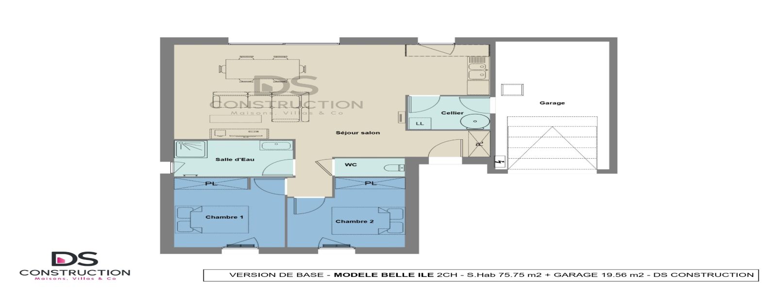
Découvrez le modèle Belle Île, une maison élégante de 76 m² au design L, optimisée pour offrir espace et lumière. Avec ses deux chambres, ce modèle est parfait pour une famille ou un couple cherchant un cadre de vie confortable et moderne.

L’intérieur de la maison est conçu pour maximiser la luminosité grâce à un séjour traversant, baigné de lumière naturelle grâce à ses deux baies vitrées. La cuisine ouverte sur cette pièce principale favorise une ambiance conviviale et chaleureuse.

Le modèle Belle Île intègre également un cellier pratique pour un rangement supplémentaire, ainsi qu’un garage spacieux de 20 m². Ce dernier offre non seulement un espace sécurisé pour votre véhicule, mais aussi des possibilités de stockage additionnelles.

Le design de la Belle Île allie modernité et fonctionnalité, créant un espace de vie lumineux et bien agencé, idéal pour ceux qui recherchent une maison à la fois esthétique et pratique.

Personnalisez et configurez cette maison, selon vos envies et besoins. N’hésitez pas à faire une demande de renseignements pour votre projet de vie.
Prix total se décomposant entre prix terrain et prix de construction, communiqué a titre indicatif et susceptible de modifications. Prix comprenant une maison aux normes RE2020 (classe énergétiques A), Construction sur vide sanitaire, Menuiserie blanches, Pompes à chaleur réversibles et chauffe-eau thermodynamique.

Le prix ne comprend pas, Adaptations au sol, Peintures, Décorations, Aménagements intérieures, Revêtements de sols des chambres, Cuisines, Aménagements extérieures, Frais de dossier et assurances en cas de recours à un prêt, Taxe d’aménagement et participations d’urbanisme, Frais d’abonnement aux réseaux et Taxes afférentes, Frais notariés, Etudes de sol, Raccordements et VRD.

La société DS Construction s’efforce d’assurer une mise à jour régulière de ses annonces. Elle ne peut cependant être tenue pour responsable d’un éventuel défaut de mise à jour de ces annonces. Visuels non contract

Simulation gratuite

Fusce quis consequat purus. Nam vitae elit id diam sollicitudin condimentum. Quisque euismod augue a orci commodo, sed hendrerit lectus commodo.

Quisque ut elit eget tellus faucibus laoreet eget eu leo. Nunc eget dolor sit amet tellus pretium aliquam vulputate sit amet risus. Cras vitae purus leo. Quisque ultrices mi in finibus bibendum. Donec felis lorem, scelerisque sit amet consectetur sed, molestie ut turpis.

Maison à construire 86120 Roiffé

Agence de Poitiers

05.86.16.05.86 1 rue du Hameau de Chaumont - 86000 Poitiers

Vous aimerez aussi