Construction Maison + Terrain – Saint-Pierre-de-Maillé
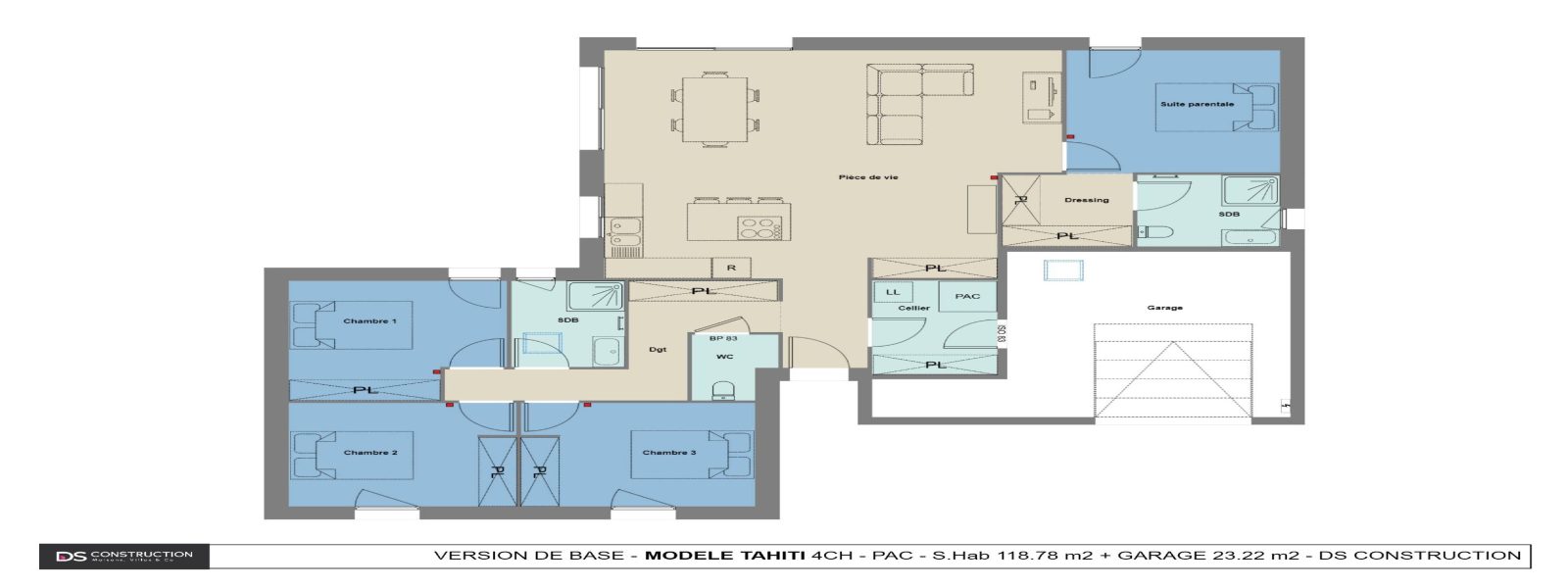
Le modèle Tahiti de 118 m² offre un agencement spacieux et moderne, parfait pour les familles recherchant confort et intimité. Avec quatre chambres, dont une suite parentale avec un grand dressing et une salle d’eau privée, cette maison est conçue pour offrir des espaces distincts à chaque membre de la famille.
La pièce de vie de 50 m² est lumineuse et ouverte sur une cuisine conviviale, favorisant un cadre de vie chaleureux. Un cellier de 6 m² vient s’ajouter pour un rangement pratique. Les trois autres chambres, disposant de leur propre WC et salle de bains, sont regroupées dans un espace séparé, garantissant intimité et tranquillité à la suite parentale.
Le modèle comprend également un garage de 25 m² et se distingue par son architecture contemporaine et élégante, marquée par des toitures multipentes, qui renforcent le style moderne de la maison. Ce jeu de volumes permet de bien délimiter les espaces et donne à cette maison une allure unique.
Prix total se décomposant entre prix terrain et prix de construction, communiqué a titre indicatif et susceptible de modifications. Prix comprenant une maison aux normes RE2020 (classe énergétiques A), Construction sur vide sanitaire, Menuiserie blanches, Pompes à chaleur réversibles et chauffe-eau thermodynamique.
Le prix ne comprend pas, Adaptations au sol, Peintures, Décorations, Aménagements intérieures, Revêtements de sols des chambres, Cuisines, Aménagements extérieures, Frais de dossier et assurances en cas de recours à un prêt, Taxe d’aménagement et participations d’urbanisme, Frais d’abonnement aux réseaux et Taxes afférentes, Frais notariés, Etudes de sol, Raccordements et VRD.
La société DS Construction s’efforce d’assurer une mise à jour régulière de ses annonces. Elle ne peut cependant être tenue pour responsable d’un éventuel défaut de mise à jour de ces annonces. Visuels non contractuels.
Simulation gratuite
Fusce quis consequat purus. Nam vitae elit id diam sollicitudin condimentum. Quisque euismod augue a orci commodo, sed hendrerit lectus commodo.
Quisque ut elit eget tellus faucibus laoreet eget eu leo. Nunc eget dolor sit amet tellus pretium aliquam vulputate sit amet risus. Cras vitae purus leo. Quisque ultrices mi in finibus bibendum. Donec felis lorem, scelerisque sit amet consectetur sed, molestie ut turpis.
Agence de Poitiers
Vous aimerez aussi