Construction Maison + Terrain – Vicq sur Gartempe
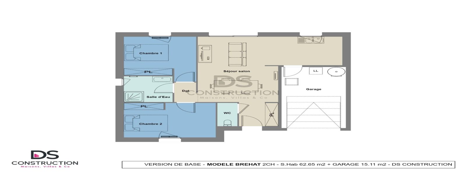
Découvrez le modèle Bréhat qui vous propose une maison compacte et bien pensée, offrant 62 m² de confort et de fonctionnalité. Avec ses deux chambres, cette maison est parfaite pour un couple ou une petite famille à la recherche d'un espace de vie harmonieux et pratique.
La cuisine ouverte, au cœur de la maison, se prolonge vers un séjour accueillant, même s'il n'est pas traversant, offrant tout de même une ambiance chaleureuse et conviviale. Chaque espace a été optimisé pour vous permettre de profiter pleinement de votre intérieur.
Un décroché en façade avant, au niveau des chambres, ajoute une touche de design unique à cette maison, la distinguant par une esthétique moderne et élégante. Le garage de 15 m² vient compléter l’ensemble.
Le modèle Bréhat se démarque par son architecture originale et son agencement réfléchi, alliant style et praticité pour répondre à vos besoins quotidiens.
Personnalisez et configurez cette maison, selon vos envies et besoins. N’hésitez pas à faire une demande de renseignements pour votre projet de vie.
Prix total se décomposant entre prix terrain et prix de construction, communiqué a titre indicatif et susceptible de modifications. Prix comprenant une maison aux normes RE2020 (classe énergétiques A), Construction sur vide sanitaire, Menuiserie blanches, Pompes à chaleur réversibles et chauffe-eau thermodynamique.
Le prix ne comprend pas, Adaptations au sol, Peintures, Décorations, Aménagements intérieures, Revêtements de sols des chambres, Cuisines, Aménagements extérieures, Frais de dossier et assurances en cas de recours à un prêt, Taxe d’aménagement et participations d’urbanisme, Frais d’abonnement aux réseaux et Taxes afférentes, Frais notariés, Etudes de sol, Raccordements et VRD.
La société DS Construction s’efforce d’assurer une mise à jour régulière de ses annonces. Elle ne peut cependant être tenue pour responsable d’un éventuel défaut de mise à jour de ces annonces. Visuels non contractuels.
Simulation gratuite
Fusce quis consequat purus. Nam vitae elit id diam sollicitudin condimentum. Quisque euismod augue a orci commodo, sed hendrerit lectus commodo.
Quisque ut elit eget tellus faucibus laoreet eget eu leo. Nunc eget dolor sit amet tellus pretium aliquam vulputate sit amet risus. Cras vitae purus leo. Quisque ultrices mi in finibus bibendum. Donec felis lorem, scelerisque sit amet consectetur sed, molestie ut turpis.