BELLE ILE
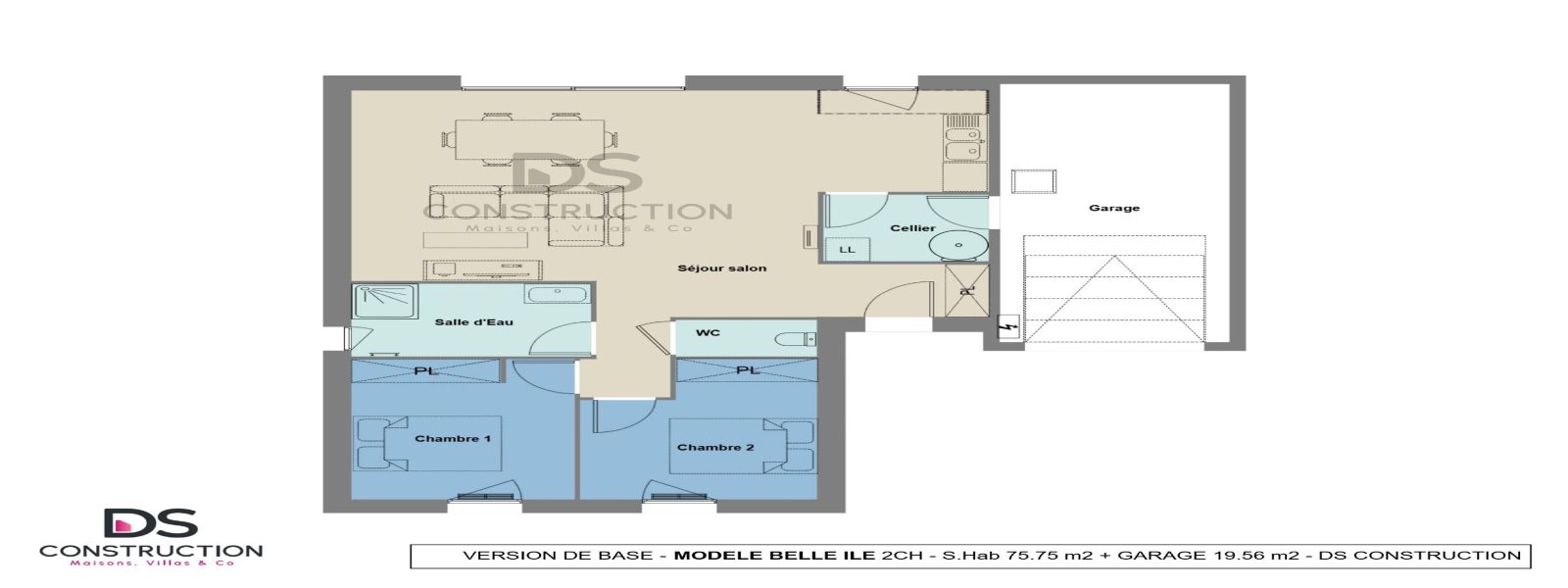
Découvrez le modèle Belle Île, une maison élégante de 76 m² au design L, optimisée pour offrir espace et lumière. Avec ses deux chambres, ce modèle est parfait pour une famille ou un couple cherchant un cadre de vie confortable et moderne.
L’intérieur de la maison est conçu pour maximiser la luminosité grâce à un séjour traversant, baigné de lumière naturelle grâce à ses deux baies vitrées. La cuisine ouverte sur cette pièce principale favorise une ambiance conviviale et chaleureuse.
Le modèle Belle Île intègre également un cellier pratique pour un rangement supplémentaire, ainsi qu’un garage spacieux de 20 m². Ce dernier offre non seulement un espace sécurisé pour votre véhicule, mais aussi des possibilités de stockage additionnelles.
Le design de la Belle Île allie modernité et fonctionnalité, créant un espace de vie lumineux et bien agencé, idéal pour ceux qui recherchent une maison à la fois esthétique et pratique.
Personnalisez et configurez cette maison, selon vos envies et besoins. N’hésitez pas à faire une demande de renseignements pour votre projet de vie.