• BREHAT 2CH V3 (1).jpg
  • BREHAT V3 (2).jpg
  • BREHAT V3 (1).jpg
  • PLAN SITE IMAGE.jpg
4
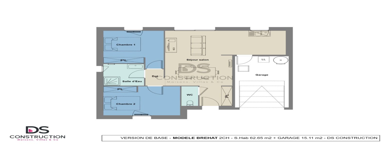
62 m² 4 pièces 2 chambres 1 sdb Garage

BRÉHAT 2CH

Découvrez le modèle Bréhat qui vous propose une maison compacte et bien pensée, offrant 62 m² de confort et de fonctionnalité. Avec ses deux chambres, cette maison est parfaite pour un couple ou une petite famille à la recherche d'un espace de vie harmonieux et pratique.

La cuisine ouverte, au cœur de la maison, se prolonge vers un séjour accueillant, même s'il n'est pas traversant, offrant tout de même une ambiance chaleureuse et conviviale. Chaque espace a été optimisé pour vous permettre de profiter pleinement de votre intérieur.

Un décroché en façade avant, au niveau des chambres, ajoute une touche de design unique à cette maison, la distinguant par une esthétique moderne et élégante. Le garage de 15 m² vient compléter l’ensemble, offrant un espace sécurisé pour votre véhicule ou du rangement supplémentaire.

Le modèle Bréhat se démarque par son architecture originale et son agencement réfléchi, alliant style et praticité pour répondre à vos besoins quotidiens.

Personnalisez et configurez cette maison, selon vos envies et besoins. N’hésitez pas à faire une demande de renseignements pour votre projet de vie.

Vous aimerez aussi