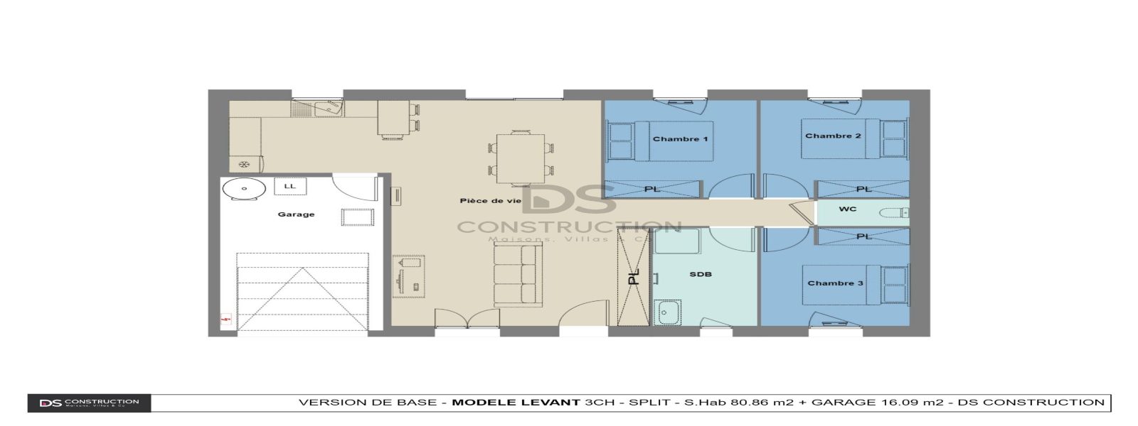
4
81 m²
5 pièces
3 chambres
1 sdb
Garage
LEVANT
Le modèle Levant de 81 m² se distingue par sa forme rectangulaire simple et fonctionnelle, parfaitement adaptée aux besoins d'une famille. Il propose trois chambres confortables, idéales pour accueillir les membres de la famille ou aménager un espace de travail.
La cuisine ouverte sur le séjour favorise une ambiance conviviale et fluide, idéale pour les moments partagés en famille. Malgré l'absence de cellier, l’aménagement de cet espace reste optimisé pour un usage pratique et quotidien.
Le modèle comprend également un garage de 16 m², apportant un espace de rangement ou un stationnement supplémentaire. Avec son design rectiligne et épuré, cette maison allie simplicité et efficacité dans un cadre harmonieux.
Nos atouts
Un accompagnement de A Z, performance énergétique, esthétisme et confort toutes nos maisons sont adaptés aux normes RE2020.
Les plus
Nos garanties
En vous délivrant un contrat de construction de maison individuelle "CCMI", nous nous engageons à vous apporter les meilleures garanties et assurances
En savoir plus
Nos avis clients
Explorez nos avis Google pour découvrir ce que nos clients disent de leur expérience avec nous.
Lire les avis