• NOSYBE V2 (3).jpg
  • NOSYBE V2 (1).jpg
  • NOSYBE V2 (4).jpg
  • PLAN SITE IMAGE (1).jpg
  • PLAN SITE IMAGE (2).jpg
5
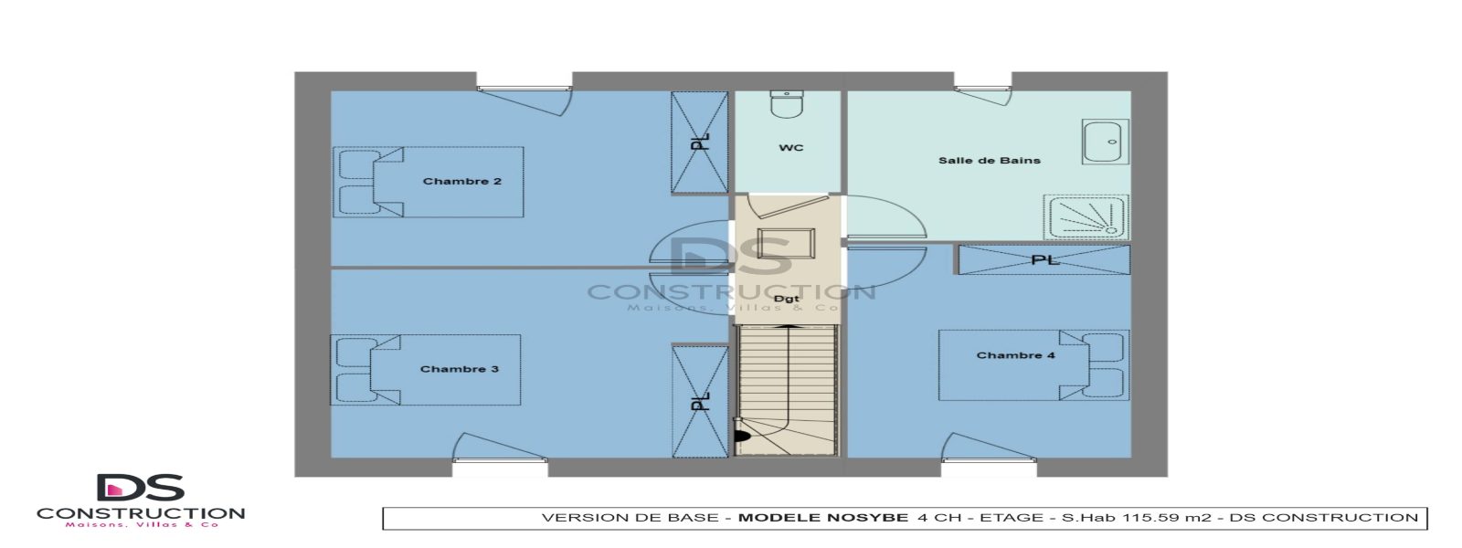
115 m² 6 pièces 4 chambres 1 sdb

NOSYBE

Découvrez le modèle Nosybe de 115 m² à étage qui est idéal pour les familles recherchant un espace de vie optimisé, même sur un terrain étroit. Avec une façade de seulement 9 mètres, cette maison s’adapte parfaitement aux petits terrains tout en offrant un intérieur spacieux et fonctionnel.

À l’étage, vous trouverez trois chambres confortables, idéales pour les enfants ou pour accueillir des invités, ainsi qu’une salle de bains moderne. Au rez-de-chaussée, une chambre supplémentaire permet de créer une suite parentale ou un bureau selon vos besoins. La cuisine ouverte, parfaitement intégrée à l’espace de vie, favorise une ambiance chaleureuse et conviviale pour vos moments en famille. Un cellier attenant à la cuisine offre un espace de rangement supplémentaire, indispensable pour un quotidien bien organisé.

Le modèle Nosybe est conçu pour maximiser chaque mètre carré, offrant une maison à la fois élégante et pratique, adaptée aux terrains étroits. Sa façade compacte et ses espaces bien pensés en font une solution idéale pour ceux qui recherchent confort et optimisation de l’espace.

Personnalisez et configurez cette maison, selon vos envies et besoins. N’hésitez pas à faire une demande de renseignements pour votre projet de vie.

Vous aimerez aussi