• SICILE 3CH V2 (1).jpg
  • SICILE 3CH V2 (2).jpg
  • SICILE 3CH V2 (3).jpg
  • PLAN SITE IMAGE.jpg
4
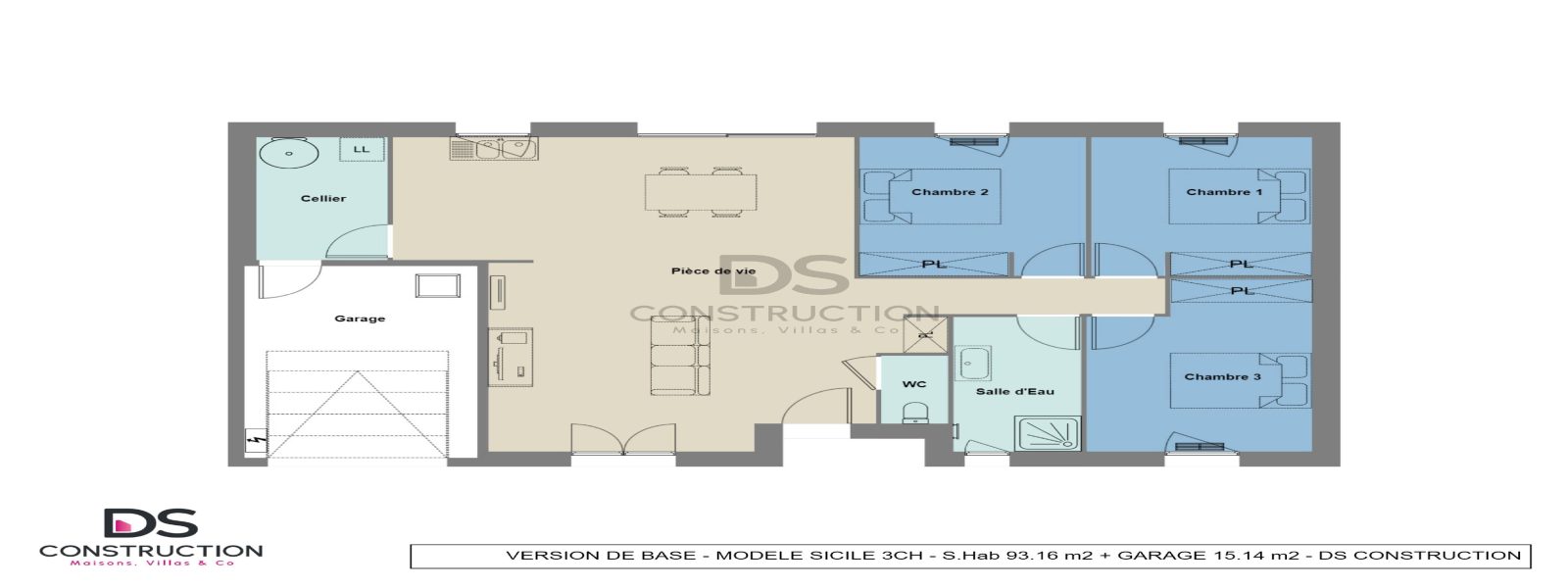
93 m² 5 pièces 3 chambres 1 sdb Garage

SICILE 3CH

Découvrez le modèle Sicile, une maison de 93 m² au design rectangulaire, qui se distingue par un renfoncement élégant d’environ 1 mètre sur 2 mètres à l'entrée, apportant une touche distinctive à la façade tout en créant un espace d'accueil chaleureux.

La Sicile offre trois chambres spacieuses, idéales pour une famille ou pour aménager un espace de travail à domicile. Le séjour traversant est conçu pour maximiser la lumière naturelle, avec une baie vitrée d'un côté et une porte-fenêtre de l'autre, inondant l'espace de jour de lumière tout au long de la journée.

La cuisine ouverte sur le séjour favorise une ambiance conviviale et fluide, tandis qu'un cellier adjacent ajoute un espace de rangement pratique pour une organisation optimale de votre intérieur. Le modèle Sicile comprend également un garage de 15 m², parfait pour le stationnement de votre véhicule ou pour du rangement supplémentaire.

Le renfoncement à l'entrée, avec ses dimensions soigneusement intégrées, crée un effet visuel moderne tout en apportant une fonctionnalité accrue. Le modèle Sicile allie élégance et praticité, offrant un espace de vie lumineux et bien agencé pour répondre à vos besoins quotidiens avec style.

Personnalisez et configurez cette maison, selon vos envies et besoins. N’hésitez pas à faire une demande de renseignements pour votre projet de vie.

Vous aimerez aussi